Imagine, for a moment, that a flood practically destroys your home. You act quickly in the aftermath by having the existing cabinetry torn out, damaged fixtures removed, and everything else stripped down to its bones so the long drying process can begin. It’s a homeowner’s worst nightmare playing out in real time—all you once knew and loved is gone. But suddenly, an unexpected opportunity emerges: this is a chance for a whole-home renovation rather than simply restoring what was there before.
You have the contractor standing by to start. Now, all you need is a designer to help tie everything together.
This is what one of our new customers recently experienced when their home became unlivable in the blink of an eye. With busy schedules, three small children, and a house that needed to be repaired FAST, they didn’t have the time or energy to develop design plans or choose materials and colors on their own.
That’s where Sunday Morning Kitchen and Bath stepped in—helping guide the entire process with thoughtful planning, curated selections, and cohesive design services that transformed a stressful situation into a clear path toward a beautifully renewed home.
Construction Had to Begin Quickly
The family was referred to us by a neighbor who had relied on us to renovate three of their bathrooms last year. We met with them almost immediately to look at the property and quickly put a plan together. To give you an idea of how quickly they needed to move forward, they accepted our plan and quote before we finished the drive home.
As you can imagine, construction began quickly, and our goal throughout was to bring their ideas and vision together as quickly as possible while taking as much stress and decision-making off their hands as possible. ProCraft RTA cabinetry minimized lead times and provided a cost-effective solution for the entire project. We then selected leathered granite countertops and large-format tile for their beauty and ease of maintenance. These durable materials ensure the home can withstand daily family life, resulting in a resilient, thoughtfully rebuilt home and a flourishing new beginning for this growing family. View the Full Project
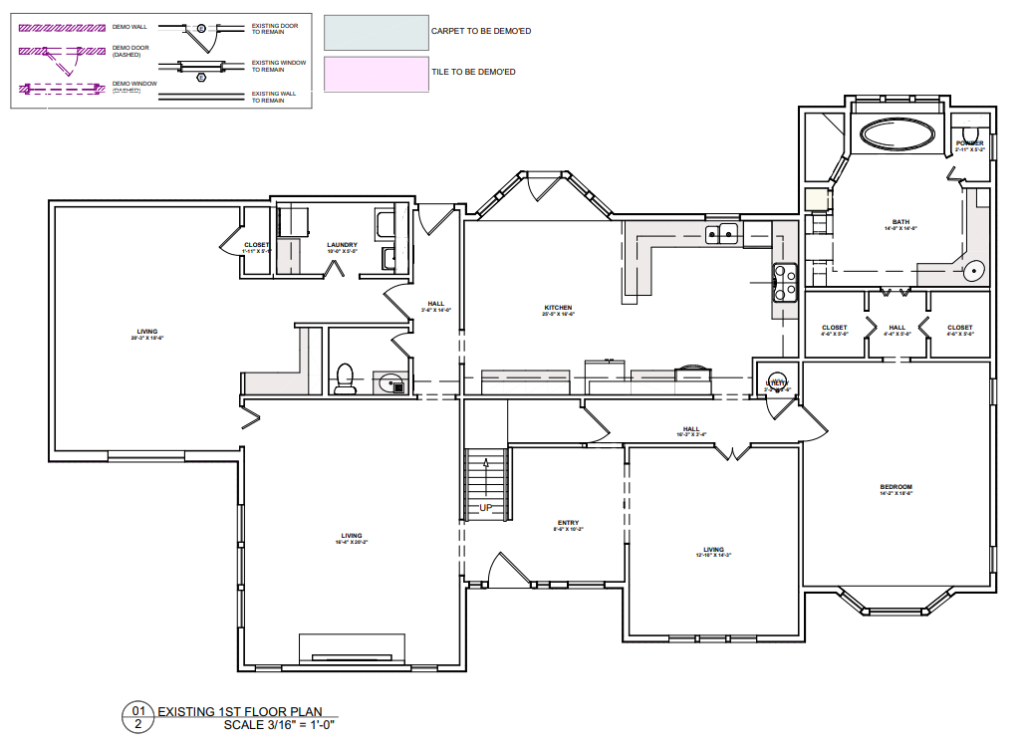
Existing Floor Plan
Proposed Floor Plan
A few highlights of this whole-home transformation included a proposed new floor plan for an updated kitchen, master bathroom, laundry room, pantry, and family room. The details are also out of this world:
-
A bright, open kitchen with smarter storage and a more functional layout
-
An upgraded cabinet pantry to replace the walk-in pantry
-
Large-format tile with reduced grout lines for the primary bathroom
-
A custom kitchen hood with a champagne bronze pot filler and dramatic veined granite
-
Patterned tile for the laundry room
-
A workstation sink with ledges for accessories
-
Pull-out drawers for spices, cutting boards, and cookware
-
Improved kitchen layout and space-saving opportunities by relocating the water heater
-
An overall lower project cost without sacrificing quality or style
-
A fast-tracked installation process
Kitchen - Before
Kitchen - After
Master Bath - Before
Master Bath - After
Laundry Room - Before
Laundry Room - After
It was an honor to work on this project. Don’t get us wrong; we are over-the-moon excited to work with all of our clients. But to see a family with three small kids displaced in the blink of an eye, and to witness the devastation first-hand, was something we will never forget. And our only objective was to give them their home back—bigger and better than ever before. View the Full Project
Design Solutions for Every Space.
Call Sunday Morning Kitchen and Bath Today!
Homeowners often turn to us when their vision seems too ambitious and is beyond their imagination—especially when structural changes and engineering are required. Whether you’re removing a load-bearing wall to expand your kitchen, transforming three or more bathrooms with a cohesive, high-end design, or ensuring your living room flows seamlessly with the rest of your remodeled spaces, Marta is committed to delivering a finished home that enhances functionality and adds unrivaled elegance.
Turn a Devastating Setback Into a Beautiful New Beginning
Call or schedule an online appointment with Sunday Morning Kitchen and Bath today to begin your journey toward a luxurious and functional living space. Our expert team guides you every step of the way.
