Breaking Walls, Building Flow: A Whole House Remodel
Complete Home Transformation
This whole-home remodel in Dallas completely reimagined the space, transforming a house full of walls into a bright, open, and cohesive layout that seamlessly connects the kitchen, living area with fireplace, family room, and dining area. The kitchen now maximizes storage, countertop space, and functionality while opening naturally to the surrounding living spaces, creating a welcoming flow for everyday life and entertaining. Bathrooms were redesigned with a focus on luxury, highlighted by a spa-like primary bathroom featuring a wet room that combines elegance and relaxation. Additional upgrades include a polished epoxy garage for two large cars, a beautifully landscaped backyard, and a front exterior with a semi-circular driveway that adds both convenience and curb appeal. Thoughtful design, open layouts, and high-quality finishes throughout the home result in a modern, comfortable, and timeless living environment.
Project Overview
From the moment you step inside, this home feels completely renewed. The remodel opened up a previously segmented floorplan into a flowing, open-concept layout that connects the kitchen, living and family areas, and dining space. Modern plank flooring and bright, cohesive finishes unify the home, while thoughtful design choices enhance both function and comfort. The kitchen now offers expanded storage and workspace, the spa-like primary bathroom provides a serene retreat, and the garage, landscaped backyard, and elegant front exterior with a semi-circular driveway complete a home that is as practical as it is stylish.
Design Goals
Seamless Flow & Connected Spaces
Walls were removed and the floorplan reconfigured to create a natural flow between the kitchen, living area, family room, and dining space. Continuous plank flooring and cohesive finishes unify the home, making each area feel open, bright, and welcoming.
Light, Luxury & Function
Brighter finishes, refined trim, and thoughtful details bring clarity and elegance to every room. French doors and expanded windows maximize natural light, while the spa-like primary bathroom, polished epoxy garage, landscaped backyard, and semi-circular driveway combine style and practicality for a modern, functional, and timeless home.
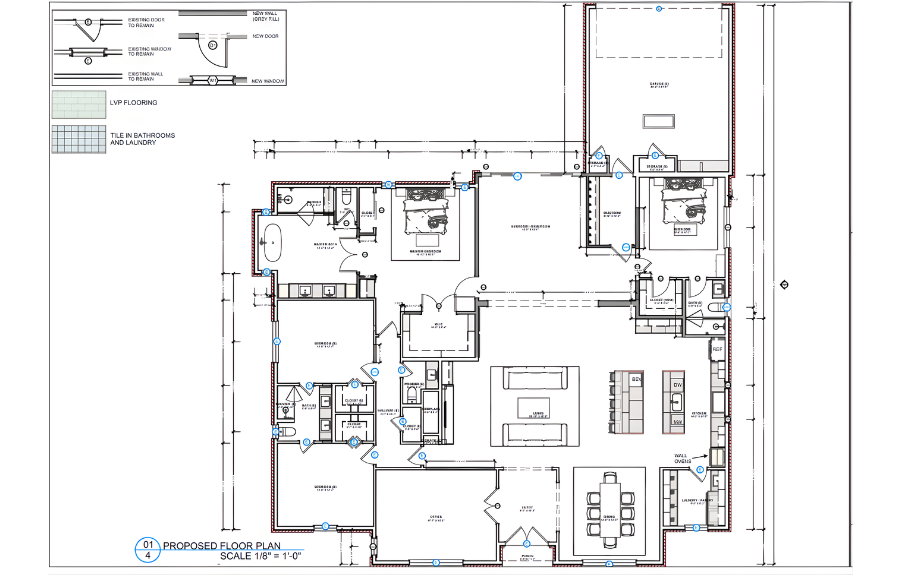
Floorplan
The before-and-after floorplans reveal the dramatic impact of this whole-home remodel. Large-scale layout changes—particularly in the kitchen, family area, and dining space—completely redefined flow, sightlines, and functionality. Walls were removed, a structural column replaced with an engineered steel beam, and spaces were reconfigured to create an open-concept layout that feels bright, connected, and modern. The result is a home where every room flows naturally, maximizing usability, light, and comfort throughout.
Kitchen
Our clients envisioned a spacious, open-concept kitchen that seamlessly connects to the family area with fireplace and the dining space, while providing ample prep and storage. We delivered this by:
Removing a structural column and installing an engineered steel beam to open sightlines throughout the kitchen, family, and dining areas.
Designing two islands to maximize workspace, prep areas, and functionality while maintaining a natural flow.
Reconfiguring the fridge and range locations and adding deep drawers, full-height pantry cabinets, and smart storage for a clean, organized, and highly functional kitchen.
Dining Area
This modern transitional dining space combines style, function, and a welcoming atmosphere. Key features include:
Geometric Chandelier – Bold lighting centerpiece that anchors the room and adds visual interest.
Abundant Natural Light – Large window frames views of greenery, enhancing the bright, airy feel.
Warm Wood Accents – Dining table and sideboard provide contrast against crisp white walls and a neutral area rug.
Designed for Hosting – Open layout and thoughtful styling create a functional yet inviting space for gatherings.
Family Room & Fireplace
This open-concept living area was designed to feel airy, inviting, and connected to the rest of the home. Key features include:
Contemporary Fireplace – Sleek design with vertical Zellige-style tile accents, acting as a modern focal point for the lounge area.
Natural Wood Floating Shelves & Oak Mantel – Provide both style and functional display space while maintaining a clean, minimalist look.
Vaulted Ceiling with Wood Beam – Adds architectural interest and emphasizes the spacious, airy feel of the room.
Open Layout for Connection & Comfort – Encourages conversation, relaxation, and flow between the kitchen, dining, and family areas.
Living Area
This bright, inviting living space blends modern design with comfort and elegance. Key features include:
Rust-Colored Velvet Accent Chairs – Four barrel chairs arranged around a minimalist black coffee table create a stylish, welcoming seating area.
Abundant Natural Light – Large French doors illuminate the room and enhance the airy, open feel.
Seamless Indoor-Outdoor Flow – The layout connects effortlessly to the patio, making the space perfect for entertaining or relaxing.
Thoughtful Modern Design – Combines clean lines, bold accents, and functional layout for a cohesive, high-end look.
Primary Bathroom
This luxurious primary bathroom was designed as a serene, spa-inspired retreat. Key features include:
Expansive Walk-In Shower – Glass-enclosed with intricate marble tile for a high-end, timeless look.
Freestanding Soaking Tub – Sleek and modern, perfect for relaxation and indulgence.
Open, Airy Layout – Minimalist white palette enhances natural light and emphasizes space.
Luxury Finishes – Thoughtful design details throughout create a refined, tranquil, and spa-like atmosphere.
Primary Bedroom
This spacious primary suite blends comfort and style for a tranquil retreat. Key features include:
Light Wood-Like Flooring – Anchors the room and complements the airy, neutral color palette.
Plush Upholstered Bed & Textured Rug – Create warmth, softness, and a cozy atmosphere.
Dark Wood Furniture Accents – Add depth and balance to the transitional design.
Thoughtful Layout & Finishes – Designed for relaxation, combining modern style with timeless comfort.
Office Room
This modern home office combines style and functionality for a productive yet luxurious workspace. Key features include:
Bold Navy Accent Wall – Board and batten detailing creates a sophisticated focal point.
Abundant Natural Light – Large French windows illuminate the space, enhancing warmth and openness.
High-End Furniture & Finishes – Organic wood desk and contemporary swivel chairs balance comfort and style.
Thoughtful Layout – Designed for productivity while maintaining a clean, modern aesthetic that complements the rest of the home.
Laundry Area & Utility Room
This modern laundry space blends functionality with style, creating an efficient yet visually appealing utility area. Key features include:
Striking Mosaic Tile Flooring – Adds pattern and character while maintaining a clean, modern aesthetic.
Ample Natural Light – Large French window brightens the space and enhances the airy, open feel.
Custom Cabinetry & Open Shelving – Provides organized storage while keeping essentials within easy reach.
Dedicated Utility Sink – Combines practicality and style for everyday laundry tasks.
Powder Room
This modern wash area combines sophistication and style in a compact space. Key features include:
Vertical Stacked Tile Backsplash – Grey tiles add texture and a contemporary feel.
Chic Brass Accents – Wall sconces and hardware provide a refined, high-end touch.
Custom White Vanity with Marble Top – Creates a polished, hotel-inspired look for guests.
Thoughtful Design – Balances functionality and elegance while complementing the home’s overall style.
Secondary Bathroom
This modern guest bathroom blends elegance with clean, high-contrast design. Key features include:
White Marble Vanity – Provides a timeless, luxurious surface for daily use.
Matte Black Fixtures – Plumbing hardware and accents add a contemporary, bold contrast.
Modern Pivot Mirrors – Sleek and functional, enhancing the minimalist aesthetic.
Thoughtful Layout & Finishes – Balances style and practicality for a polished, hotel-inspired guest bath.
Secondary Bedroom
This modern guest bathroom blends elegance with clean, high-contrast design. Key features include:
White Marble Vanity – Provides a timeless, luxurious surface for daily use.
Matte Black Fixtures – Plumbing hardware and accents add a contemporary, bold contrast.
Modern Pivot Mirrors – Sleek and functional, enhancing the minimalist aesthetic.
Thoughtful Layout & Finishes – Balances style and practicality for a polished, hotel-inspired guest bath.
Tertiary Bathroom
This bright guest bath balances modern style and functionality. Key features include:
Navy Blue Stacked Subway Tile Shower – Adds visual interest and a bold, contemporary focal point.
Glass Shower Door – Maintains an open, airy feel while showcasing the tile work.
Modern White Vanity – Sleek and functional, complementing the overall clean aesthetic.
High-End Chrome Fixtures – Provide durability and a polished, refined look throughout the space.
Mud Room
This functional yet stylish entryway combines organization and design. Key features include:
Custom Slate Blue Built-In Unit – Adds color, sophistication, and seamless style to the entry.
Beadboard Detailing – Provides subtle texture and a refined transitional look.
Integrated Storage Solutions – Includes coat hooks, upper cubbies, and under-bench shoe storage for ultimate organization.
Practical & Polished Design – Balances everyday functionality with timeless aesthetic for a busy household.
Garage and Backyard
This home’s exterior spaces combine style, functionality, and comfort, creating a seamless transition between indoor and outdoor living. Key features include:
Expansive Backyard – Flat, sun-drenched lawn with a large concrete patio provides the perfect foundation for an outdoor kitchen, lounge area, or entertaining space.
Privacy & Security – Fully enclosed with horizontal fencing, offering a serene and secure outdoor retreat.
High-End Two-Car Garage – Professional-grade epoxy flooring with a speckled finish, bright white walls, and recessed LED lighting create a clean, showroom-quality space.
Spacious Parking & Functional Design – Accommodates large vehicles comfortably while maintaining a polished, organized look.
Exterior House Front
This single-story renovation combines modern design with elevated curb appeal. Key features include:
Crisp Painted Brick Façade – Creates a clean, contemporary look that anchors the home’s exterior.
Symmetrical Layout – Highlights a balanced, polished architectural design.
Large Grid Windows – Maximize natural light while adding modern elegance.
Custom Double-Door Entry & Designer Lighting – Provides an inviting, high-end focal point and enhances the home’s welcoming presence.
The Result
This isn’t just a renovation—it’s a transformation. From the open-concept kitchen and vaulted living area to the spa-like primary bath and organized mudroom, every space was thoughtfully designed to meet the homeowners’ lifestyle. The home is now brighter, more functional, and fully personalized, showing how intentional design can completely renew a space.







































































